新ライブハウス誕生!
2026-01-02 16:52:19

JR大塚駅近くにオープン!次世代型ライブハウス「大塚FUTURE:」の魅力とは

JR大塚駅近の新たな文化拠点「大塚FUTURE:」



2026年3月1日、東京の豊島区に新たにオープンするライブハウス「大塚FUTURE:」。この施設は、JR大塚駅から徒歩わずか30秒という素晴らしい立地に位置しており、音楽ファンにとって非常にアクセスしやすい場所です。隣接するマクドナルドやスターバックスのおかげで、その視認性も抜群です。

多彩な音楽イベントに対応可能



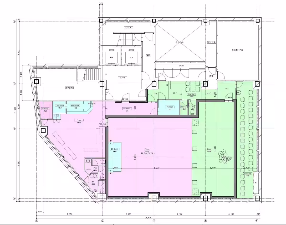
「大塚FUTURE:」の最大の魅力は、そのキャパシティにあります。350名を収容できるこのライブハウスは、ツアーの初日やファイナル公演、さらにはワンマンライブやリリースイベントなど、多岐にわたる音楽イベントに柔軟に対応できます。そのサイズ感は、ちょうど良いサイズでありつつも、ステージは幅9m、奥行5mという広さを誇り、都内でもトップクラスの性能を持っています。

先進的な設備が揃った理想の空間



施設内の設備にも妥協はありません。ステージ背面には高精細LEDビジョンが設置されており、視聴者に対してダイナミックな映像体験を提供。その上、FOH(フロントオブハウス)にはd&bの最新型小型ハイパワーラインアレイ「CCLi8」を導入し、音響面でも最高のパフォーマンスを実現します。

このように、視覚と音響の両方において、アーティストの表現力を引き出す自由度の高い設計が施されています。また、楽屋動線や特典会スペース、物販動線にも細心の注意が払われており、演者や主催者にとって非常に使いやすい環境が整っています。これは「演者・主催者が本当に使いやすい箱」という理念を基にした、利用者ファーストな会場です。

次世代型ライブハウスの提案



「大塚FUTURE:」は単なる新店舗にとどまらず、“次世代型スタンダードライブハウス”を掲げる画期的な試みです。これまでのライブハウスに対する常識を覆すような新しい音楽体験が提供されることでしょう。

2026年2月に開かれる予定のオープンに向けて、多くのファンが期待を寄せています。アーティストやイベントオーガナイザーにとっても、新たな活動の場となることでしょう。今後の進捗が楽しみです。

基本情報


  • - 施設名称: 大塚FUTURE:
  • - 住所: 東京都豊島区北大塚2丁目13−1ba07 B1
  • - 最寄駅: JR大塚駅 徒歩30秒
  • - キャパシティ: 350名 (スタンディング)
  • - ステージサイズ: 幅9m × 奥行5m
  • - OPEN時期: 2026年3月1日
  • - お問い合わせ先: [email protected]

このように、音楽シーンに新たな息吹をもたらす「大塚FUTURE:」。次世代の音楽文化を楽しむために、ぜひ注目しておきたいスポットです。


画像1

画像2

画像3

関連リンク

サードペディア百科事典: 東京音楽 ライブハウス 大塚FUTURE:

トピックス(エンタメ)

【記事の利用について】

タイトルと記事文章は、記事のあるページにリンクを張っていただければ、無料で利用できます。
※画像は、利用できませんのでご注意ください。

【リンクついて】

リンクフリーです。