空気循環システム
2025-12-16 11:52:13

快適な住環境を実現する新しい空気循環システムのご紹介

快適な住環境を実現する「空気循環システム」



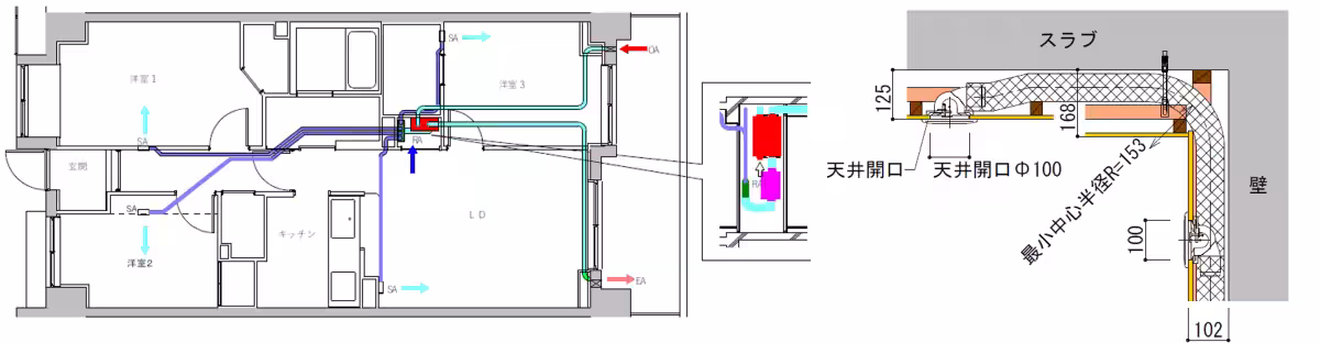
マンションのリノベーションを推進する株式会社リコシス(代表取締役社長:山本卓也)は、最近の住宅需要の変化に応じて、高気密・高断熱化が進む中での空気質向上を目指す新製品「空気循環システム」を発表しました。このシステムは、全熱交換型換気機能と外気清浄機能を一体化させており、健康で快適な居住環境を提供します。

空気循環システムの特徴



1. 全熱交換型換気システム


このシステムは、室内の空気を快適な温度に調整しつつ、計画的な換気を実施します。例えば、冬季の場合、排気された室内の空気を利用してセラミック製の素子を通過させ、熱を蓄えます。その後、外の冷たい空気と熱交換を行うことで、室温に近い温度で新鮮な空気を取り入れます。これにより、空調の負荷を軽減することが可能です。

2. 外気清浄機(トルネックス製)


このシステムに組み込まれている外気清浄機は、花粉やウイルス、PM2.5などの微細な汚染物質を電子集塵フィルタによって0.1㎛以下の粒子サイズまで除去します。この1台で、住宅全体の空気を清浄化することができます。

3. 優れたメンテナンス性


フィルタへのアクセスが容易であるため、定期的なお手入れが簡単で、クリーンな空気環境を維持可能です。換気システムの性能はフィルタの清浄状態に左右されるため、メンテナンスのしやすさはとても重要なポイントです。

施工例と実証実験


「空気循環システム」は、マンションの二重床を利用して設置することが可能です。このダクト空間を利用することにより、すっきりとしたデザインが実現できます。また、二重床が無い場合でも、廊下の天井や梁を利用した配管方法を採用できます。一般的な工期は約3日程度とされており、短期間での導入が可能です。

最近、町田市のマンションで行われた実証実験では、夏季においても快適な温度の空気を室内に供給できることが確認されました。また、外気の粉塵を遮断する性能についても検証され、室内の空気品質が外気に比べて低い汚染度に保たれることが確認されました。これらの結果は、リコシスのシステムが実際の住環境で信頼性が高いことを示しています。

まとめ


リコシスが展開する「空気循環システム」は、省エネと快適性を兼ね備えた新しい住環境の実現を目指しています。マンションのリノベーション市場において、温熱環境や空気品質の向上に寄与するこの技術の導入は、今後ますます重要になるでしょう。快適な住まいを手に入れたい方は、ぜひこの新技術に注目してみてください。


画像1

画像2

画像3

画像4

画像5

画像6

画像7

画像8

画像9

画像10

画像11

関連リンク

サードペディア百科事典: リコシス 空気循環システム 省リノベーション

トピックス(その他)

【記事の利用について】

タイトルと記事文章は、記事のあるページにリンクを張っていただければ、無料で利用できます。
※画像は、利用できませんのでご注意ください。

【リンクついて】

リンクフリーです。